隨著社會的不斷發展,客戶的需求越來越多樣化,對無機房電梯的需求也越來越多,同時,無機房電梯的布置方式也更多樣化,結構更趨緊湊。現針對本人設計過程中碰到的一些情況做簡單介紹。
一、門機在機架體梁投影下方時的情況
一般頂層高度足夠時,門機在機架體梁投影的下方時是滿足GB7588-2003標準要求的,但是碰到一些特殊情況,導致門機與承重梁的距離不能滿足標準要求時,就需要在機架體梁的布置方式、結構上去創新,以尋求最佳解決方案。
方案一、利用主導軌和對重導軌作為受力載體,結構如圖1所示。
此種方案機架體材料成本低,結構、工藝簡單,但是主導軌、對重導軌均需采用實心導軌,導軌下端一般要落在導軌座底面上。此方案應考慮實心、空心導軌的沉降及沉降是否均勻,此種方案主機機架安裝比較獨立,無需在墻體上開槽,常用于小載重、低速電梯。

圖1 導軌受力結構
1—機架體 2—對重導軌連接件 3—對重導軌
4—主導軌 5—主導軌連接件 6—連接件
方案二、利用主導軌、側墻體、后墻體作為受力載體,結構如圖2所示。


圖2 主導軌與墻體共同受力
(a)俯視圖 (b)側視圖
此種方案機架梯材料成本低,結構、工藝簡單,對重導軌一般采用空心導軌,較方案一能節約導軌成本。此方案也需考慮導軌的沉降,導軌下端一般要落在導軌座底面上。此種方案常用于小載重、低速電梯。
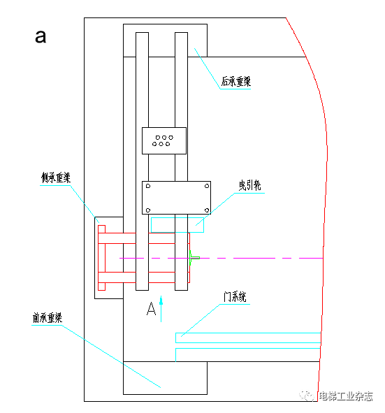
方案三、采用對重后置,結構如圖3所示。

圖3 對重后置結構
此種方案轎廂繩頭梁布置在高點位置,可以滿足與門系統的安全距離要求。此方案結構復雜,底坑深度相應要加深,轎廂凈寬可以做到最大,井道空間利用率大。
方案四、將承重梁分段加工,采用螺栓、焊接結構,避開門系統的位置,結構如圖4所示。

圖4 層差式機架體結構
此種方案機架體1與機架體2先用螺栓連接,然后焊接成一體,可用上下加強板、上下加強筋加強,焊縫應嚴格要求,做好焊接檢驗。此方案通用性強,適用于大部分側置式無機房電梯,可以滿足與門系統的安全距離要求。
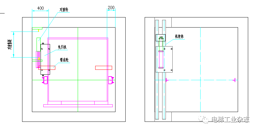
二、一種井道寬度利用率高的側置無機房電梯布置方案實施例
一般額定載重量1000Kg,額定速度1.75m/s的側置式無機房電梯轎廂凈寬大約為:井道凈寬-800,井道的寬度利用率低,且轎廂易設計成狹長結構,不美觀。而圖5所示轎廂布置方案可以將轎廂凈寬設計為:井道凈寬-600,這樣較好的解決了上述問題。
當主機投影在轎廂上方時,在轎頂護欄上要做好標識,提醒檢修人員不要俯伏,不要把頭、手伸出護欄外。轎頂護欄與主機的間隙要盡量大,最好大于50mm,防止剪切。在平層位置時,轎頂護欄應超出主機外緣的最下邊(圖6),或者主機外緣的最下邊做護板延伸到護欄頂部以下(圖7)。
圖5 井道寬度利用率高的側置無機房實施例

圖6轎頂護欄保護措施

圖7主機外下緣防護板
結論:無機房電梯機架體的結構設計方案有多種,采用何種方案使受載更合理、材料更節約、工藝更簡單、安全性更好是我們一直努力的目標。
作者:余海波 夏偉
來源:《電梯工業》雜志2019年4月 第116期






